Zkraťte úhlové profily pomocí pily na kov podle nákresu.
Na stavbu kuchyňské desky budete potřebovat
Rozměry:
- Velká betonová deska 40x650x1200 mm
- Malá betonová deska 40x600x650 mm

Zkrácení U profilů
Umístěte velkou pěnovou desku uříznutou na míru na rovný povrch - drsnou stranou dolů. Předvrtejte vyříznuté úhlové profily přibližně každých 100 mm (viz náčrtek), vyrovnejte je plochou stranou do jedné roviny s okraji desky a přišroubujte je celkem 22 šrouby (4,5x20 mm).
Stejným způsobem zhotovte formu pro malou betonovou desku. Poté každou formu přesně vyrovnejte v obou osách pomocí vodováhy tak, aby byly betonové desky rovnoměrně tlusté.
Pro výřezy pro dřez a kuchyňskou baterii v betonové desce vyřízněte z tvrdé pěnové desky kruh - zaznamenejte průměr dřezu a baterie. Zarovnejte kulaté desky zrcadlově obráceně na požadovaných místech, protože desky budou později na dřezové skříňce umístěny vzhůru nohama.
Potřeba vody pro velkou formu: 14 l, pro malou formu: cca 8 l. Do 90litrového vědra na maltu nasypte písek a beton v uvedeném množství. Při pomalých otáčkách míchačky přimíchávejte po malých dávkách vodu a vločky skelných vláken, dokud se po 10 až 15 minutách nevytvoří krémová hmota. Nyní vmíchejte změkčovadlo podle pokynů na obalu a hotovou hmotu ihned nalijte do formy. Poté povrch pečlivě uhlaďte škrabkou.
Po přibližně 6 dnech schnutí opatrně odstraňte profily. Na jiném pracovním stole udělejte rošt pro větrání, položte na něj desky a nechte je zcela vytvrdnout. Poté pomocí brusky odstraňte otřepy na okrajích. Cement potřebuje nejméně 28 dní, aby dosáhl plné pevnosti v tlaku.
Bezpečnost při práci s betonem
Mokrý beton reaguje silně alkalicky, proto může kontakt s pokožkou způsobit popáleniny, záněty a alergie. Při práci s betonem dodržujte všechny bezpečnostní pokyny výrobce, noste pracovní oděv s dlouhými rukávy, rukavice, ochranu očí a bezpečnostní obuv. Pokud se dostanete do kontaktu s betonem, omyjte jej velkým množstvím vody a převlékněte se. Dávejte pozor na neslučitelnost s ochrannými prostředky nebo povrchovou strukturou. Po ztvrdnutí betonu již žádné riziko nehrozí.
Na výrobu dřezové skříňky budete potřebovat
Seznam k řezání (18 mm):
- Zadní deska: 1 kus à 1134x767 mm
- Základní panel: 1 kus 1134x583 mm
- Podstavcové lišty: 2 kusy à 447x100 mm (hloubka)
- Základní lišta: 2 kusy à 1170x100 mm (šířka)
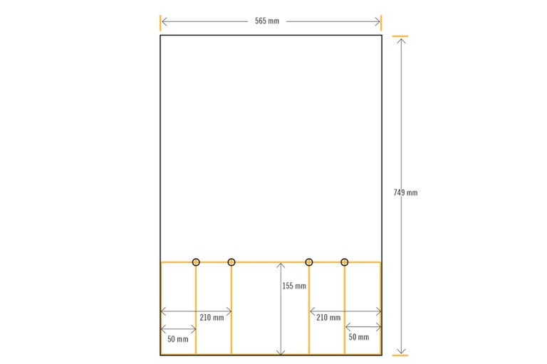
- Dělicí stěna: 1 kus à 565x749 mm
- Boční panely: 2 kusy à 583x785 mm
- Příčné vzpěry: 2 kusy à 1134x100 mm
- Dveře: 1 kus à 537x777 mm
- Police: 1 kus à 603x565 mm
- Předvrtejte a zahlubte desky tak, aby jejich hladké strany později tvořily vnitřek skříně a strukturovaný povrch směřoval ven.
Seznam řezů latí pro oplechování (vrstvené dýhové řezivo 24x40x2400 mm):
- dlouhé: 2 kusy à 40x1770 mm
- krátké: 4 kusy à 40x535 mm

Předvrtání desek
Předvrtejte všechny desky podle následujících vrtacích náčrtů pomocí "předvrtání záhlubníkem".
TIP
Pro vrtání se doporučuje "vrták se záhlubníkem". Tím se na horním konci vrtaného otvoru vytvoří kužel, který poskytne prostor pro hlavu šroubu. Hlava šroubu nevyčnívá a vy se vyhnete prasklinám ve dřevě.
Těmito otvory později přišroubujete příčné vzpěry k zadní stěně.

Chcete později umístit ledničku na polici? Pak je vhodné vyříznout z levé strany zadní stěny větrací prostor o rozměrech cca 250x350 mm.
(Pro přesné umístění větrací plochy si rovněž poznamenejte rozměry chladničky).

Těmito otvory později přišroubujete základní desku k zadní stěně.

Těmito otvory později přišroubujete sokl, na kterém bude dřezová skříňka stát.

Těmito vyvrtanými otvory později přišroubujete tuto mezistěnu k polici.

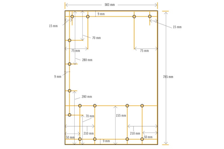
Těmito otvory později přišroubujete levou boční stěnu k základní desce, zadní stěně a příčným vzpěrám.

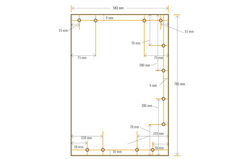
Náčrt vrtání pravé boční stěny (zvenčí)
Těmito vyvrtanými otvory později přišroubujete tuto pravou boční stěnu ke spodnímu panelu, zadnímu panelu a příčným vzpěrám. Předvrtanou levou bočnici můžete použít jako vrtací šablonu v opačném směru (!): Vyvrtejte otvory bez zahloubení a poté je zahlubte na zadní straně (později na vnější straně).

Na vnitřní straně pravé boční stěny vyznačte tužkou čáry (přerušované čáry) podle náčrtu. Tyto čáry budete později potřebovat k montáži dveřních závěsů.

Těmito vyvrtanými otvory později přišroubujete tyto příčné vzpěry ke dvěma bočním stěnám.

Okraje všech desek obrousíme, dokud nejsou všechny hrubé plochy hladké a nehrozí nebezpečí vzniku třísek a odštěpků.
Umístěte zadní stěnu do roviny s vnější a zadní stranou základní desky, vyrovnejte ji mezi bočními stěnami v pravém úhlu a přišroubujte ji na místo celkem 23 šrouby (4,5x40 mm) podle nákresů vrtání.
Vyrovnejte příčné vzpěry na vnější a horní straně v jedné rovině mezi bočními stěnami a přišroubujte je k bočním stěnám vždy čtyřmi šrouby (4,5x40 mm), zadní vzpěru navíc pěti šrouby (4,5x40 mm) k zadní stěně.
Zasuňte přepážku a přišroubujte ji k příčným vzpěrám dvěma šrouby (4,5x40 mm) shora a ke spodnímu panelu čtyřmi šrouby (4,5x40 mm) zespodu. Poté přišroubujte polici k levému bočnímu panelu a přepážce vždy čtyřmi šrouby (4,5x40 mm).
Srovnejte soklové lišty v pravém úhlu s úhelníkem a sešroubujte je celkem osmi šrouby (4,5x40 mm) podle nákresů vrtání.
Otočte skříň a umístěte podstavec doprostřed a do roviny s boky. Na vnitřní straně každé krátké strany vyrovnejte dva držáky (40x40x40 mm) ve vzdálenosti 40 mm od dlouhých stran. Přišroubujte držáky k základové desce a soklu vždy 4 šrouby (3,5x16 mm). Přišroubujte další dva držáky vždy čtyřmi šrouby (3,5x16 mm) do středu dlouhých soklových lišt na základní desce a soklu.
Přišroubujte čtyři nábytkové nohy ve vzdálenosti 50 mm k dlouhým stranám pomocí čtyř šroubů (3,5x16 mm), každý přímo před držáky na základní desku.
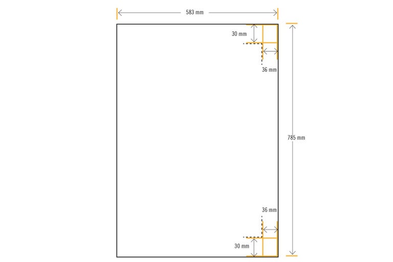
Podle náčrtu nakreslete dvě značky pro středový bod vrtáku Forstner (40 mm) a vyvrtejte 15 mm hluboko. Poté přišroubujte závěsy přesně v pravém úhlu k delší straně.
Přišroubujte závěsy k pravé boční stěně podle nákresu boční stěny (uvnitř): Horní hrana horního závěsu je proti čáře (30 mm k horní hraně). Spodní okraj spodního závěsu je proti čáře (30 mm ke spodnímu okraji). Šrouby jsou umístěny na svislé čáře (36 mm do strany). Poté připevněte push-to-open podle pokynů výrobce na vnitřní stranu příčky pomocí přiloženého montážního materiálu.
Vyrovnejte latě v pravém úhlu podle náčrtu pomocí čtyřhranu a každý spoj přišroubujte dvěma šrouby (4,5x50 mm) bez předvrtání.
Vyznačte šest otvorů ve středu latí podle nákresu na zadní straně desky.
TIP
V závislosti na způsobu připojení vody na místě vyvrtejte otvor pro odtokovou armaturu na vhodném místě na zadní nebo pravé vnější straně dřezové skříňky pomocí nástrčného záhlubníku.
K výrobě kuchyňské skříňky budete potřebovat
Seznam potřebných desek (18 mm):
- Zadní deska: 1 kus à 564x767 mm
- Základní panel: 1 kus o rozměrech 564x583 mm
- Podstavcové lišty: 2 kusy à 447x100 mm (hloubka)
- Podstavcové lišty: 2 kusy à 600x100 mm (šířka)
- Boční panely: 2 kusy à 583x785 mm
- Příčné vzpěry: 2 kusy à 564x100 mm
- Dveře: 1 kus à 588x777 mm
- Police: 1 kus à 564x565 mm
- Předvrtejte a zahlubte desky tak, aby jejich hladké strany později tvořily vnitřek skříně a strukturovaný povrch směřoval ven.

Předvrtejte všechny desky podle následujících vrtacích náčrtů.
Později těmito otvory přišroubujete zadní příčnou výztuhu k této zadní stěně. (Pro orientaci viz také obrázek na začátku tohoto návodu).

Těmito otvory později přišroubujete tuto základní desku k zadní stěně.

Těmito otvory později přišroubujete podstavec, na kterém bude kuchyňská skříňka stát.

Tyto dvě příčné vzpěry později přišroubujete ke dvěma bočním stěnám a zadní navíc k zadní stěně.

Těmito otvory později přišroubujete tělo dřezové skříňky.

Předvrtaný levý boční panel lze použít jako šablonu pro obrácené vrtání: K tomu je třeba vyvrtat otvory bez zahloubení a poté je zahloubit na opačné straně (později z vnější strany).

Na vnitřní straně pravé boční stěny vyznačte tužkou čáry (přerušované čáry) podle náčrtu. Tyto čáry budete později potřebovat k montáži dveřních závěsů.



Okraje všech desek zbrousíme, dokud nejsou všechna hrubá místa hladká.
Umístěte zadní stěnu do roviny s vnější a zadní stranou základní desky, vyrovnejte ji mezi boční stěny a přišroubujte ji k bočním stěnám a základní desce celkem 23 šrouby (4,5x40 mm).
Vyrovnejte příčné vzpěry na vnější a horní straně v jedné rovině mezi bočními stěnami a přišroubujte je k bočním stěnám vždy čtyřmi šrouby (4,5x40 mm), zadní vzpěru navíc čtyřmi šrouby (4,5x40 mm) k zadní stěně.
Zasuňte polici a přišroubujte ji ke skříni čtyřmi šrouby na každé straně (4,5x40 mm) podle nákresu vrtání bočních panelů.
Srovnejte soklové lišty v pravém úhlu s úhelníkem truhláře a sešroubujte je celkem osmi šrouby (4,5x40 mm) podle nákresů vrtání.
Otočte skříň a umístěte podstavec doprostřed a do roviny s boky. Na vnitřní straně každé vnější strany vyrovnejte dva závěsy (40x40x40 mm) ve vzdálenosti 40 mm dopředu a dozadu. Přišroubujte závěsy k základové desce a soklu vždy čtyřmi šrouby (3,5x16 mm).
Přišroubujte čtyři nábytkové nohy ve vzdálenosti 50 mm vpředu nebo vzadu pomocí čtyř šroubů (3,5x16 mm), každý přímo před závěsy na základní desce.
Podle náčrtu nakreslete dvě značky pro středový bod vrtáku Forstner (40 mm) a vyvrtejte 15 mm hluboko. Poté závěsy sešroubujte.
K sestavení všech dílů venkovní kuchyně budete potřebovat
Seznam dílů na míru pro dřezové skříňky do venkovní
- Boční panel vpravo: 12 kusů à 583 mm
- Zadní stěna: 12 kusů à 1170 mm
- Dveře: 12 kusů à 537 mm
- Kryt proti vodě: 7 kusů à 1770 mm
- Info: Kryt proti vodě později spojuje dřezovou skříňku (díl 2) s kuchyňskou linkou (díl 3).
Seznam lišt:
- Zadní deska: 12 kusů à 600 mm
- Dvířka: 12 kusů à 588 mm
Seznam lišt pro grilovací skříňku:
- Boční panel vlevo: 10 kusů à 583 mm
- Zadní stěna: 10 kusů à 1008 mm
- Pravé dveře: 10 kusů à 493 mm
- Levé dveře: 10 kusů à 493 mm

Předvrtejte každý kus zepředu podle náčrtu. Všimněte si, že některé lišty musí být před předvrtáním přizpůsobeny vybrání pro vodovodní přípojku.

Aby lišty vypadaly dobře, musí být na všech kuchyňských skříňkách umístěny ve stejné výšce. Proto se doporučuje sestavit všechny kuchyňské díly na rovné ploše a nejprve namontovat spodní řadu lišt v jedné rovině dole na všech dílech, poté druhou řadu na všech dílech atd.
Připevněte lišty na boční strany (jak je uvedeno v seznamech řezů) jedním šroubem (3,5x30 mm) na každém konci podle nákresu. První pásek namontujte dole do roviny. Vzdálenost mezi lištami odpovídá dvěma šířkám skládacího pravítka. Ukončení latí naleznete na následujícím náčrtu.

Naneste silikon na okraje zadních panelů a bočních panelů dvou vysokých skříní a poté vyrovnejte desku hladkou stranou nahoru a ze všech stran do jedné roviny.
Naneste silikon na okraj dřezu a vložte dřez. Vložte kuchyňskou baterii a připevněte dřezovou odtokovou armaturu.
Zespodu našroubujte přípojku na kuchyňský kohoutek a připojte k ní zahradní hadici pro přívod vody. UPOZORNĚNÍ: V závislosti na materiálu přípojky (např. zahradní hadice) nemusí být voda z kohoutku pitná.
Umístěte ochranný kryt proti stříkající vodě v jedné rovině s deskami skříněk přisunutých k sobě (dřezová skříňka a kuchyňská skříňka) ...
... a přišroubujte je k zadní stěně šesti šrouby (4,5x50 mm).
Bezpečnost na prvním místě
Tyto pokyny byly vypracovány s maximální možnou péčí, ale mohou ukázat pouze jeden možný postup. Proto realisticky zhodnoťte své vlastní schopnosti a v případě nejistoty vždy vyhledejte odbornou radu.
Společnost HORNBACH neručí za nesprávné použití materiálů a nástrojů nebo za neodbornou montáž.
Žádný z kusů nábytku nesmí být používán k horolezectví nebo gymnastice. Abyste předešli nehodám způsobeným pádem, upozorněte na toto riziko zejména děti.
- Při všech pracovních krocích používejte vhodné ochranné pomůcky.
- Před sestavením nábytku obrouste plochy, aby se předešlo zraněním (např. třískami).
- Všechny hrany by měly být v ideálním případě dokončeny bruskou (bruska s minimálním poloměrem 3 mm). Pokud není bruska k dispozici, je třeba hranu obrousit ručně na minimální poloměr 2 mm.






























