Je Praha - Černý Most skutečně vaše prodejna?
Oblíbené 0 Nákupní košík
HORNBACH Praha - Černý Most Otevírací doba
Chlumecká 2398
198 00 Praha - Černý Most

servis-prahacm@hornbach.com
+420 225 357 - 000
po - pá: 6:30 - 21:00 Uhr
so: 7:00 - 21:00 Uhr
ne: 8:00 - 21:00 Uhr
Tuto informaci jste si vytiskli dne 11.05.26 v 11:09 h. Prosím vezměte na vědomí, že kvůli náhlým pohybům cen na světových trzích se ceny na tomto výtisku mohou lišit od aktuálních cen v den nákupu v prodejnách nebo na e-shopu.

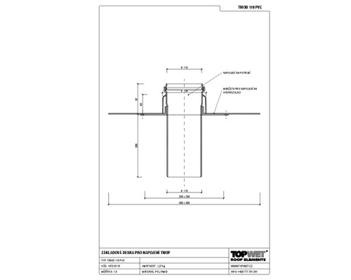
Prostup parozábranou TOPWET s integrovanou PVC manžetou, DN 110

cenu — 1434,00 Kč * Všechny ceny vč. DPH a bez nákladů na přepravu za ks
Jmenovitý průměr DN
Č. výr. 10186041
  • Provedení: Stoupací trubka
  • Varianta: Trubky
  • Specifikace materiálu: Polyamid PA6
Více informací o zboží
Nechat si doručit domů
  •  
  • Dodací lhůta cca 7 pracovních dní
HORNBACH Praha - Černý Most
  • Lze koupit on-line

Informace o výrobku

Přeskočit oblast
  • Druh výrobku
    Roura/ trubka
  • Varianta
    Trubky
  • Provedení
    Stoupací trubka
  • Oblast využití
    Exteriér
  • Využití
    Odvodnění ploché střechy
  • Materiál
    Plast
  • Specifikace materiálu
    Polyamid PA6
  • Jmenovitý průměr DN
    110 mm
  • Výška
    288 mm
  • Materiál manžety
    PVC
  • Barevný odstín
    Šedá
  • EAN
    8595638712705

Datové listy

Popis

Přeskočit oblast

Prostup parozábranou TOPWETIntegrovaná PVC manžeta (hydroizolační fólie na bázi PVC)Pro napojení TWOP a TWP na parotěsnou zábranuVýrobek nelze použít jako prostup pro spodní stavbu

Bezpečnost výrobků

Přeskočit oblast

Zodpovědnost za bezpečnost výrobku viz .

Zákaznická hodnocení

Přeskočit oblast

Hodnocení mohou být napsána i od zákazníků, kteří zboží prokazatelně nepoužili nebo nekoupili.

nahoru